FİYAT £427,500 - £840,000
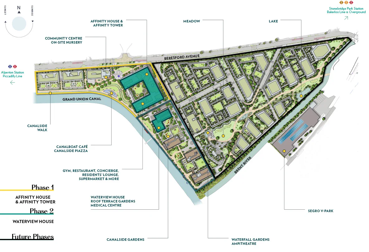
Grand Union, Waterview House
Alperton'da konumlanan Waterview House, Wembley'e yakınlığı ve şehir merkezi bağlantılarıyla yatırımcılar için mükemmel bir fırsat sunuyor. Son 12 ay içinde bu bölgedeki kira fiyatları %10 ila %22 arasında arttı. Gelecek yıl için %8'lik bir artış tahmin edilen bölgede yer alan Waterview House'da yatırım yaparak, kira gelirinizi artırırken aynı zamanda bölgedeki büyüme trendinden de payınızı alın.
ODA SAYISI 1,2,3
KONUT ALANI 55 - 100 m2
PROJE DURUMU Q4 2024 - Q1 2025
ÖNÜMÜZDEKİ 5 YIL İÇİNDE 15% SERMAYE BÜYÜMESİ
5%'E VARAN KİRA GETİRİSİ
MEVCUT MÜLK BAŞINA 22 KİRALAMA BAŞVURUSU
ÖNEMLİ YENİLENME ALANI: THE GOLDEN TRIANGLE
- Stonebridge Park Station: 10dk yürüme
- Alperton Station: 17dk yürüme
- London Designer Outlet: 9dk araçla
- Central Middlesex Hospital: 6dk araçla
- Wembley Stadium: 9dk araçla
- Horsenden Hill: 30dk yürüme
- Westfield Shopping Center: 15dk araçla
- Troubadour Wembley Park Theatre: 22dk
- London Heathrow: 23dk araçla
Grand Union Projesi Size Neler Sunuyor?
- 7/24 konsiyerj hizmeti
- Lounge, çalışma alanları ve toplantı salonları
- Fitness salonu, çocuk yuvası, sağlık merkezi ve süpermarket
- Araç ve bisiklet park alanları, elektrikli araç şarj istasyonları
- Sinema odası ve bowling salonu
- Kanal boyunca yürüyüş yolu, ortak yeşil alanlar, çok amaçlı parklar ve teras alanı ile yaklaşık 55 dönüme varan açık alan
- Kafe, bar, restoran ve ofis binaları
Grand Union Projesi Neden Değerli Bir Yatırım?
- Grand Union, yaklaşık 30 milyar Sterlin’lik iş, ofis ve konut yatırımlarıyla bölgeye büyük bir canlılık getirecek İngiltere’nin önemli yenilenme alanlarından biri olan The Golden Triangle‘in merkezinde yer alıyor.
- IKEA, BMW, Royal Mail, McVitie’s, Sainsbury’s, Enterprise, Ocado, Barclays gibi toplamda 1,700 işletme ve 43,000 çalışanın bulunduğu bu bölgede, yenilenme projesi kapsamında önümüzdeki 30 yıl içerisinde 65,000 yeni iş imkanı daha yaratılıyor olacak.
MEVCUT KONUTLAR
Property: Waterview House
Floor: 2
Type: 1 Bed
View: Landscaped Boulevard & Flower Garden
Aspect: NE
Size: 590 sqft
Balcony: 79 sqft
Colour Palette: Light Grey
Anticipated Completion: Q4 2024 – Q1 2025
Monthly Estimated Rental Value: £1,900
Property: Waterview House
Floor: 3
Type: 1 Bed
View: Canal & Landscaped Boulevard
Aspect: NW
Size: 556 sqft
Balcony: 59 sqft
Colour Palette: Light Grey
Anticipated Completion: Q4 2024 – Q1 2025
Monthly Estimated Rental Value: £1,900
Property: Waterview House
Floor: 6
Type: 1 Bed
View: Landscaped Boulevard & Flower Garden
Aspect: SE
Size: 594 sqft
Balcony: 103 sqft
Colour Palette: Light Grey
Anticipated Completion: Q4 2024 – Q1 2025
Monthly Estimated Rental Value: £1,900
Property: Waterview House
Floor: 15
Type: 1 Bed
View: Landscaped Boulevard, Flower Garden & Rooftop Terrace
Aspect: SE
Size: 594 sqft
Balcony: 63 sqft
Colour Palette: Dark Grey
Anticipated Completion: Q4 2024 – Q1 2025
Monthly Estimated Rental Value: £2,000
Property: Waterview House
Floor: 15
Type: 2 Bed
View: Canal, Landscaped Boulevard & Wembley Stadium
Aspect: NW
Size: 813 sqft
Balcony: 72 sqft
Colour Palette: Light Grey
Anticipated Completion: Q4 2024 – Q1 2025
Monthly Estimated Rental Value: £2,550
Property: Waterview House
Floor: 2
Type: 3 Bed
View: Canal, Landscaped Boulevard & Wembley Stadium
Aspect: SW
Size: 1,026 sqft
Balcony: 98 sqft
Colour Palette: Light Grey
Anticipated Completion: Q4 2024 – Q1 2025
Monthly Estimated Rental Value: £2,900
Property: Waterview House
Floor: 4
Type: 3 Bed
View: Canal, Landscaped Boulevard & Wembley Stadium
Aspect: SW
Size: 1,026 sqft
Balcony: 98 sqft
Colour Palette: Light Grey
Anticipated Completion: Q4 2024 – Q1 2025
Monthly Estimated Rental Value: £2,900
Property: Waterview House
Floor: 4
Type: 3 Bed
View: Canal & Landscaped Boulevard
Aspect: NW
Size: 1,076 sqft
Balcony: 100 sqft
Colour Palette: Light Grey
Anticipated Completion: Q4 2024 – Q1 2025
Monthly Estimated Rental Value: £2,900
BU YATIRIM FIRSATI İLGİNİZİ Mİ ÇEKTİ?
Aşağıdaki formu doldurun, size ücretsiz danışmanlık verelim.
İngiltere'deki konut yatırımı fırsatlarını detaylarıyla anlatalım.





